Modélisation 3D "Tel Que Construit" : Réseaux de Tuyauteries Format PLANT3D avec possibilité d'extraction automatique des Isométriques.
Entraigues sur Sorgues : Projet d'amélioration de procédés sur un complexe de valorisation de Biogaz.
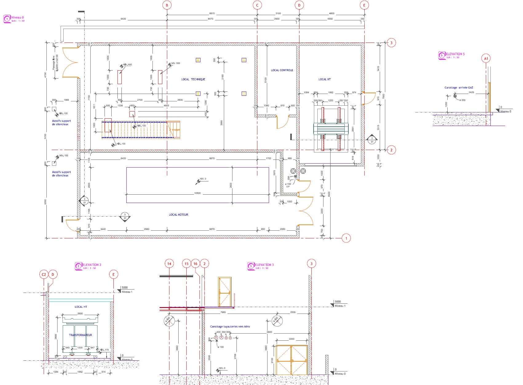
Modélisation 3D "Tel Que Construit" : Batîment 3D + plans sur REVIT Autodesk
Création par :
PIGT 2016